[Cod:186] Casa indipendente con annessi e giardino
C.da Pirato Lombardo Quartarella, Modica, Ragusa, 97015, Italia (Modica Sorda - S.Luca)
A Modica Sorda in C.da San Luca, tranquilla zona residenziale comoda a tutti i principali servizi, proponiamo in vendita casa indipendente da ristrutturare, soluzione ideale per chi desidera creare un’abitazione su misura, valorizzando ogni spazio secondo le proprie esigenze.
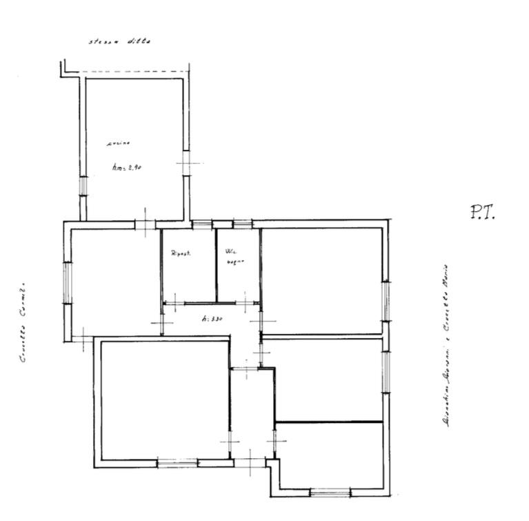
L’immobile si sviluppa interamente su un unico livello e offre una superficie residenziale di circa 150 mq, composta da 6 vani oltre accessori, con ambienti spaziosi e ben distribuiti. Completano la proprietà un garage doppio, ed un locale attualmente adibito a deposito entrambi attigui al corpo principale. Giardino privato.
La combinazione di indipendenza, metratura generosa e posizione strategica rende questa soluzione particolarmente interessante sia come abitazione principale sia come investimento. Ottimo potenziale di valorizzazione !
Per maggiori informazioni o per fissare una visita, non esitate a contattarci.
| Tipo di proprietà: | Casa Singola |
| Dimensione Lotto: | 1500 metri |
| Superficie non residenziale: | 100 metri |
| Superficie: | 150 metri |
| Condizione Immobile: | Da ristrutturare |
| Certificazione Energetica: | In fase di valutazione |
| Piano: | Intero edificio |
| Anno di costruzione: | 1960 |
| Parcheggio: | Garage |
| Numero di parcheggi: | 2 |
| Camere da letto: | 3 |
| Bagni: | 2 |
| Ripostigli: | 2 |
Contattaci per avere maggiori informazioni riguardo la proprietà






























